產品介紹 Product Introduction
-
首頁
-
產品介紹
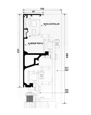
- TH-W2雙扇走單自動門機
|
型號
|
TH-W2
|

|
|
重疊門
|
雙扇走單邊
|
四扇走單邊
|
|
門扇重量
|
130KG x 2
|
90KG x 4
|
|
門扇寬度
|
500mm ~ 3000mm
|
|
安裝方式
|
表面按裝
|
|
馬達
|
DC24V75W直流無刷馬達
|
|
控制器
|
智慧型微電腦化處理控制器
|
|
消耗電量
|
75W
|
|
電源電壓
|
AC80V ~ 250V皆可
|
|
環境溫度
|
-20°C ~ +50°C
|
|
噪音量
|
60分貝(最大)
|
|
手推開啟力量
|
3kg
|
|
開啟速度
|
650mm/
|
600mm/
|
|
開啟時間
|
0~20(可調)
|
|
傳動要件
|
齒型皮帶
|
|
開門幅度
|
全開/半開(可調整)
|
|
PFC功率因素
|
0.95 (AC100V全載時)
|